基本情報
- 会場名
- Lux~リュクス~(リュクス)
- 電話番号
- 050-5489-8602
- 住所
- アクセス
地下鉄鶴舞線 伏見駅 徒歩9分
- 駐車場
無し
- 営業時間
- 8:00~翌5:00 (L.O.4:00、ドリンクL.O.4:00) ※完全予約制 ※24時間営業(事前お問い合わせお願い致します。)
- 定休日
- 年中無休
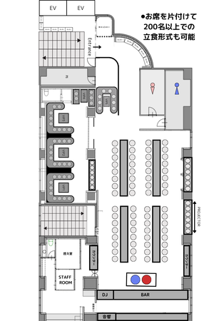
- 収容人数
着席:20〜100名
立食:20〜200名
- 平均予算
- 5,000円
- 会場使用料
無料
- 貸切保証金
100,000円(5,000円×20名)
曜日、時間、時期により変動あり
設備・サービス
- 会場タイプ
- その他
- スタイル
少人数対応(20名以下)/大人数対応(100名以上)
貸切(店舗):20〜200名
- 料理ジャンル
- イタリアン/その他洋食
- 料理のこだわり
- ビュッフェ形式/フリードリンク形式(飲み放題)/ケーキ手配/ケーキ持ち込み(有料)/持ち込みケーキにつきましては、個別にご相談を承ります。
- 特徴
- 新郎新婦控室/クローク/プロジェクター/マイク設備/ステージ/バンド演奏/音響設備/BGM/DJブース/バーカウンター/照明設備/電波が入る/3時間以上の利用/21時以降開始
- 手配可能アイテム
- プチギフト/装花/インスタントカメラ/ウェディングドレス/招待状・案内状・印刷物/ウェルカムボード/ブーケ/ビンゴ/景品/テーブル装飾、キャンドルなど
- スタッフ
- 幹事代行/プランナー手配/司会代行/カメラマン手配
その他
- サービス一覧

